Vyberte si apartmán
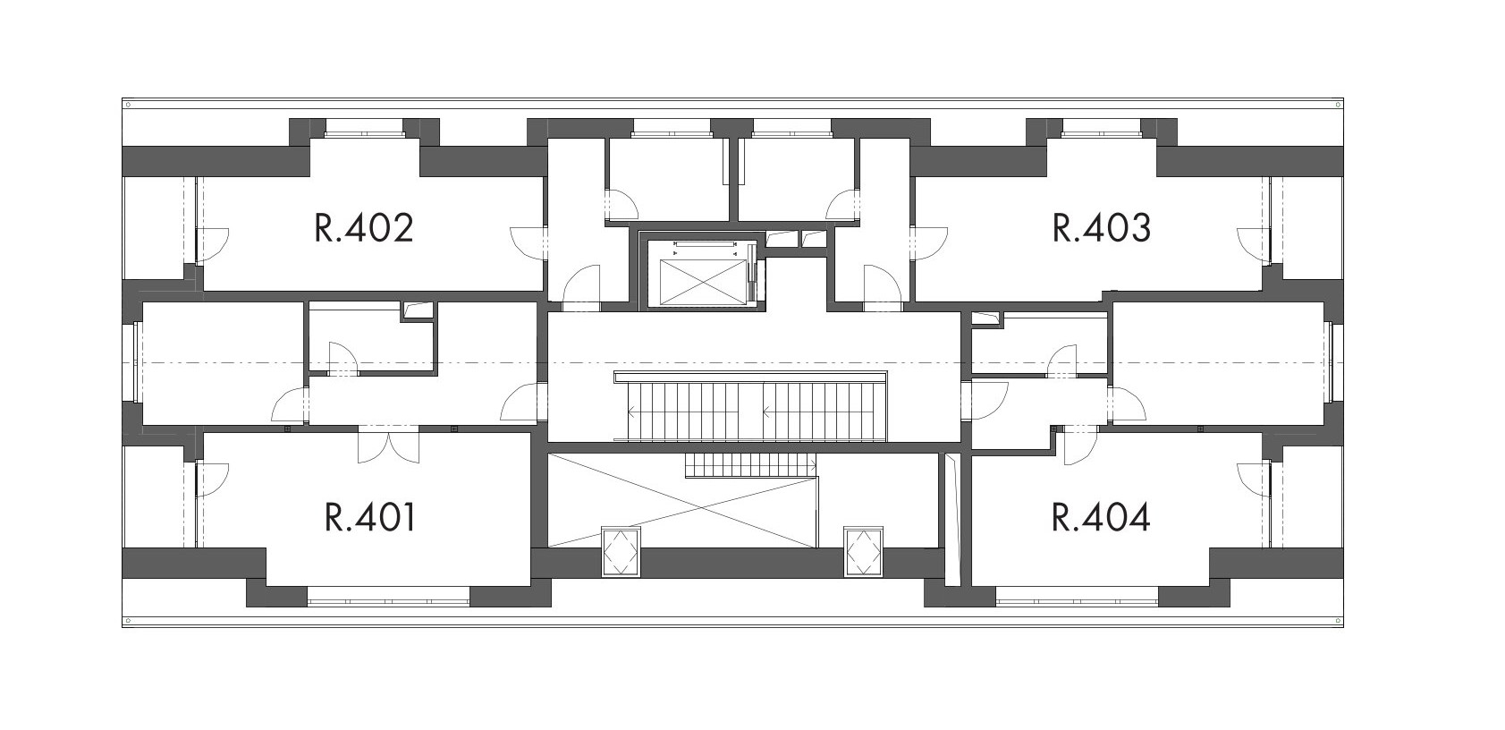
R.401
R.402
R.403
R.404
R.305
| Jednotka | Podlaží | dispozice | Plocha m² dle NOZ | Lodžie m² | Předzahrádka m² | Cena | Stav | Detail |
|---|---|---|---|---|---|---|---|---|
| R.401 | 4.NP | 2+kk | 60,0 | 3,8* / 5,5** | -- | Na dotaz | Volný | Detail |
| R.402 | 4.NP | 1+kk | 39,2 | 3,8* / 5,5** | -- | Na dotaz | Volný | Detail |
| R.403 | 4.NP | 1+kk | 40,3 | 3,8* / 5,5** | -- | Na dotaz | Volný | Detail |
| R.404 | 4.NP | 2+kk | 52,2 | 3,8* / 5,5** | -- | Na dotaz | Předběžná rezervace | Detail |
* započitatelná podlahová plocha, pod zkosenými stropy od světlé výšky 1,2 m
**celková plocha podlahy, pod zkosenými stropy od světlé výšky 0,35 m
K apartmánům nabízíme ke koupi garážové stání.
Ski-box ke každé jednotce je zahrnutý v ceně, cyklo-box v podzemní garáži za příplatek.
Údaje a sdělení zde obsažená mají pouze informativní charakter a jsou společně dále definovány jako „Prezentace“.
Prezentace není nabídkou ve smyslu § 1731 nebo § 1732 občanského zákoníku, ani se nejedná o veřejný příslib dle § 1733 občanského zákoníku či jakoukoliv předsmluvní informaci.

Ing. Jan Valeš
jednatel
Rokytnice Development s.r.o.
