VOLNÝ
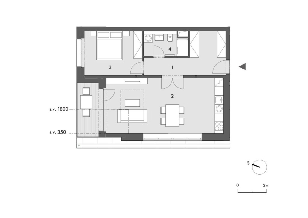
Apartmán R.401
- 1 – CHODBA 11,3 m²
- 2 – OBÝVACÍ POKOJ+KK29*/30,5** m²
- 3 – LOŽNICE12,0 m²
- PODLAHOVÁ PLOCHA MÍSTNOSTÍ 56,7*/58,2** m²
- PODLAHOVÁ PLOCHA DLE NOZ 60,0 m²
- LODŽIE3,8*/5,5**m²
- * započitatelná podlahová plocha, pod zkosenými stropy od světlé výšky 1,2 m
- ** celková plocha podlahy, pod zkosenými stropy od světlé výšky 0,35 m
Apartmán o dispozici 2+kk je vhodný pro 2 až 4 osoby a nabízí prakticky řešený interiér. Dominantou bytu je obývací pokoj s kuchyňským koutem o velikosti 29 m², ze kterého je přímý vstup na lodžii o ploše 3,8 m². Dispozice dále zahrnuje prostornou chodbu s dostatkem úložných prostor a samostatnou ložnici o rozloze 12 m². Lodžie je orientována na severozápad, což zajišťuje příjemné odpolední a večerní světlo.

Ing. Jan Valeš
jednatel
Rokytnice Development s.r.o.




