Předběžná rezervace
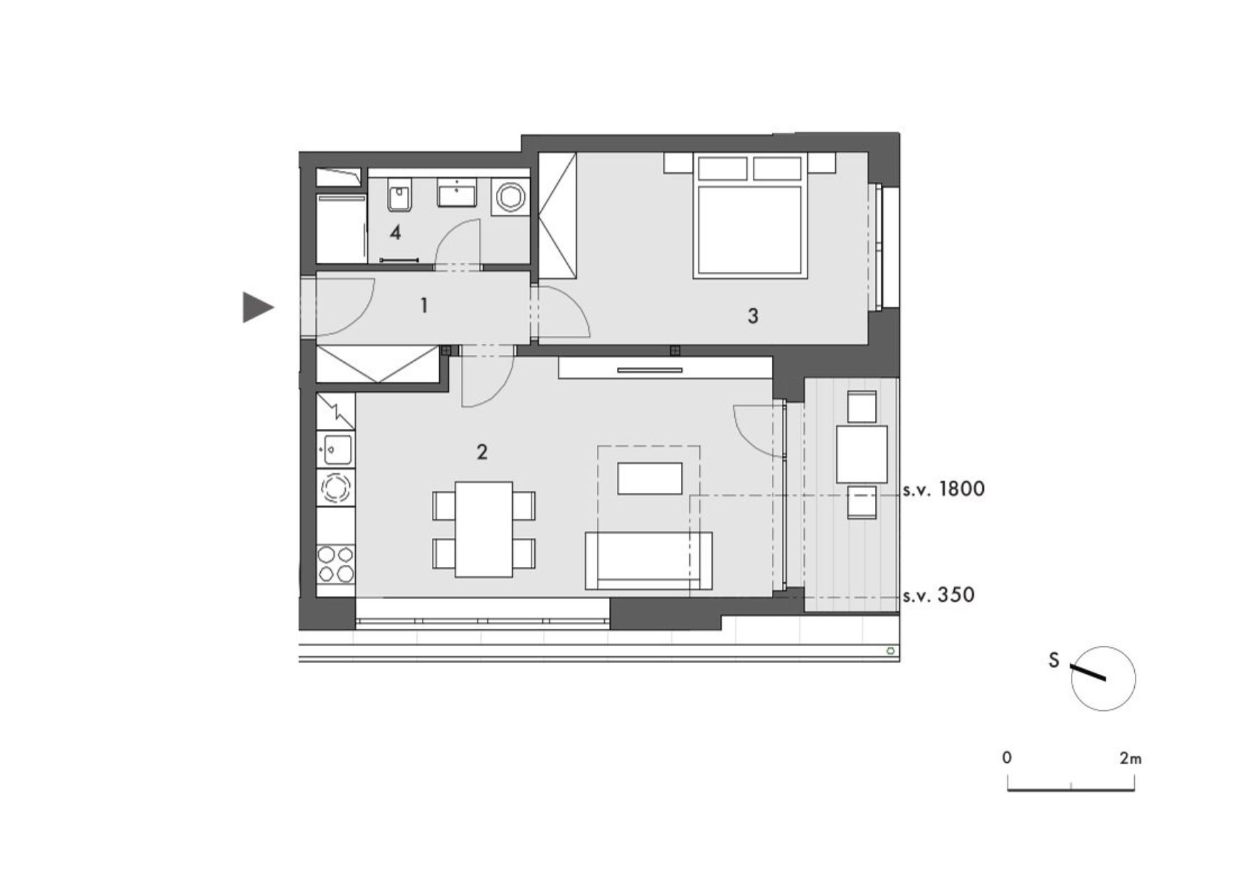
Apartmán R.404
- 1 – CHODBA5,0 m²
- 2 – OBÝVACÍ POKOJ + KK24,7*/25,9** m²
- 3 – LOŽNICE15,7 m²
- 4 – KOUPELNA4,3 m²
- PODLAHOVÁ PLOCHA MÍSTNOSTÍ 49,7*/50,9** m²
- PODLAHOVÁ PLOCHA DLE NOZ 52,2 m²
- LODŽIE3,8*/5,5**m²
- * započitatelná podlahová plocha, pod zkosenými stropy od světlé výšky 1,2 m
- ** celková plocha podlahy, pod zkosenými stropy od světlé výšky 0,35 m
Apartmán o dispozici 2+kk nabízí komfortní zázemí pro 2 až 4 osoby. Dominantou bytu je prostorný obývací pokoj s kuchyňským koutem o rozloze 24,7 m², ze kterého je přímý vstup na lodžii o velikosti 3,8 m² orientovanou na jih. Obytný prostor je navíc prosvětlen francouzským oknem směřujícím na jihozápad, které zajišťuje dostatek denního světla po většinu dne. Dispozici doplňuje samostatná ložnice o ploše 15,7 m².

Ing. Jan Valeš
jednatel
Rokytnice Development s.r.o.




