VOLNÝ
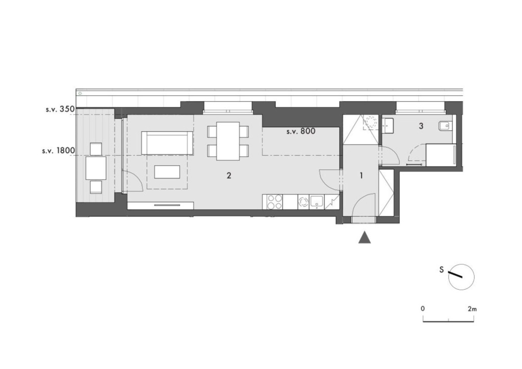
Apartmán R.402
- 1 – CHODBA SE ŠATNOU6,7 m²
- 2 – LOŽNICE5,8 m²
- 3 – OBÝVACÍ POKOJ + KK25,8*/29,6**m²
- PODLAHOVÁ PLOCHA MÍSTNOSTÍ 38,3*/42,1** m²
- PODLAHOVÁ PLOCHA DLE NOZ 39,2 m²
- LODŽIE3,8*/5,5**m²
- * započitatelná podlahová plocha, pod zkosenými stropy od světlé výšky 1,2m
- ** celková plocha podlahy pod zkosenými stropy od světlé výšky 0,35/0,8 m

Ing. Jan Valeš
jednatel
Rokytnice Development s.r.o.




