Předběžná rezervace
Apartmán R.303
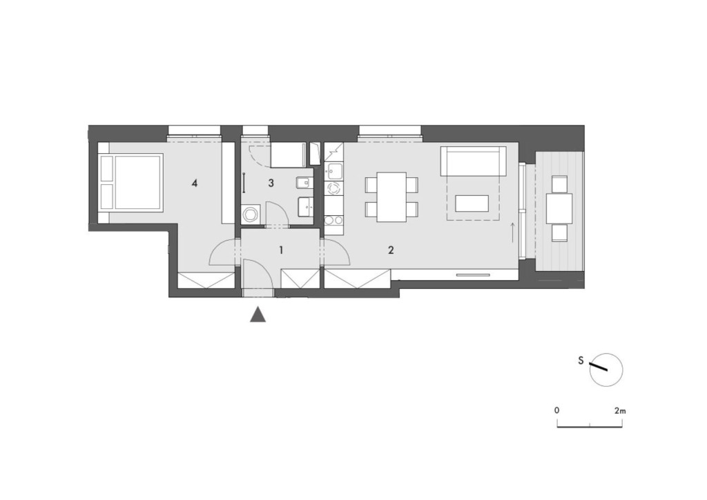
- 1 – CHODBA 4,5 m²
- 2 – LOŽNICE SE ŠATNOU14,1 m²
- 3 – KOUPELNA5,5 m²
- 4 – OBÝVACÍ POKOJ + KK25,8 m²
- PODLAHOVÁ PLOCHA MÍSTNOSTÍ 49,9 m²
- PODLAHOVÁ PLOCHA DLE NOZ 51,7 m²
- LODŽIE5,5 m²

Ing. Jan Valeš
jednatel
Rokytnice Development s.r.o.




