VOLNÝ
Apartmán R.205
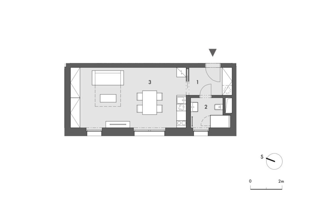
- 205.01 – CHODBA 4,67 m²
- 205.02 – KOUPELNA4,19 m²
- 205.03 – OBÝVACÍ POKOJ + KK27,48 m²
- PODLAHOVÁ PLOCHA MÍSTNOSTÍ 36,34 m²
- PODLAHOVÁ PLOCHA DLE NOZ 37,62 m²
Jednotka typu atelier 1+kk se spacím patrem. Praktická dispozice umožňuje pohodlné ubytování až pro 4 osoby. Apartmán je orientován na severovýchod, do vnitrobloku. Podlahová plocha místností 26,3 m2 + spací patro 9,1 m2. Plocha dle NOZ 27,9 m2, nezapočítává spací patro.
Jednotka typu atelier 1+kk se spacím patrem. Praktická dispozice umožňuje pohodlné ubytování až pro 4 osoby. Apartmán je orientován na severovýchod, do vnitrobloku. Podlahová plocha místností 26,3 m2 + spací patro 9,1 m2. Plocha dle NOZ 27,9 m2, nezapočítává spací patro.

Ing. Jan Valeš
jednatel
Rokytnice Development s.r.o.

