VOLNÝ
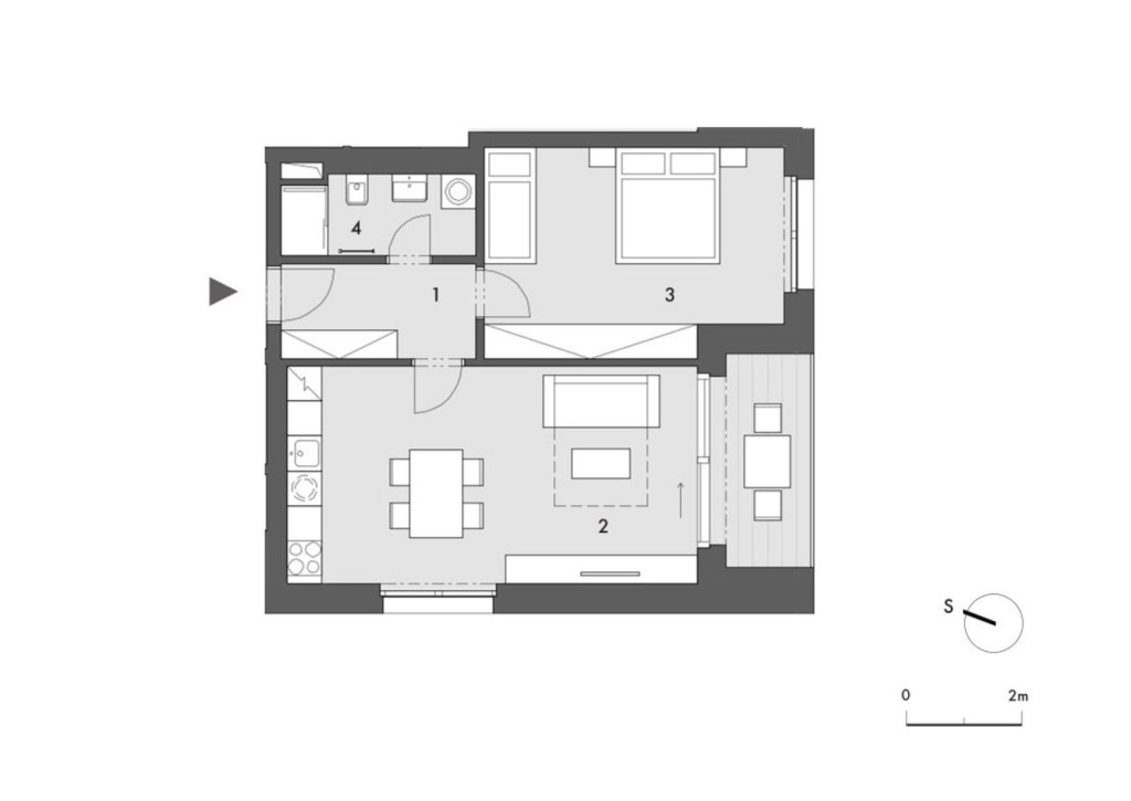
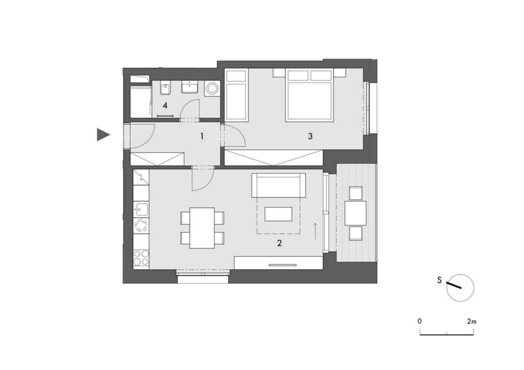
Apartmán R.204
- 1 – CHODBA 5,5 m²
- 2 – OBÝVACÍ POKOJ + KK26,4 m²
- 3 – LOŽNICE17,9 m²
- 4 – KOUPELNA4,5 m²
- PODLAHOVÁ PLOCHA MÍSTNOSTÍ 54,3 m²
- PODLAHOVÁ PLOCHA DLE NOZ 57,0 m²
- LODŽIE5,5 m²
Apartmán 2+kk je ideální pro 2 až 4 osoby. Prostorný obývací pokoj s kuchyňským koutem o velikosti 26,4 m² je hlavním centrem bytu a zajišťuje přímý přístup na lodžii o ploše 5,5 m² orientovanou na jih. Obývací prostor doplňuje francouzské okno s výhledem na jihozápad, které přináší příjemné světlo. Samostatná ložnice o rozloze 17,9 m² pohodlně pojme manželskou postel i samostatné lůžko.

Ing. Jan Valeš
jednatel
Rokytnice Development s.r.o.




