VOLNÝ
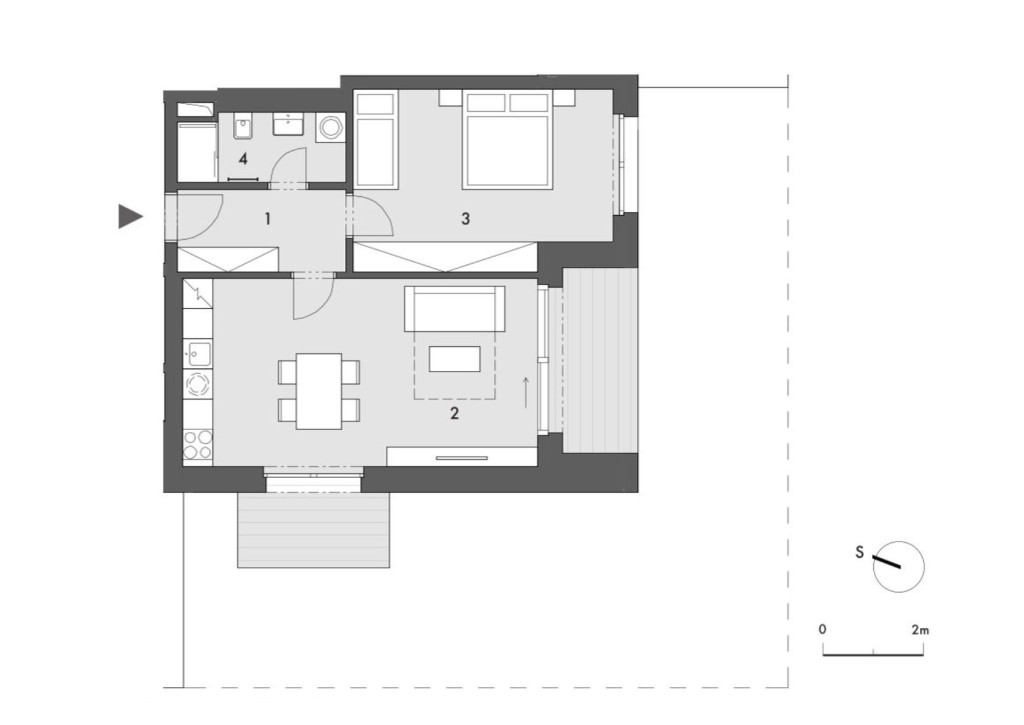
Apartmán R.103
- 1 – CHODBA 5,5 m²
- 2 – OBÝVACÍ POKOJ + KK26,4 m²
- 3 – LOŽNICE17,9 m²
- 4 – KOUPELNA4,5 m²
- PODLAHOVÁ PLOCHA MÍSTNOSTÍ 54,3 m²
- PODLAHOVÁ PLOCHA DLE NOZ 57,0 m²
- LODŽIE 5,5 m²
- PŘEDZAHRÁDKA70,9 m²
Apartmán 2+kk s podlahovou plochou 54,3 m² nabízí komfortní zázemí pro 2 až 4 osoby. Hlavní obytný prostor tvoří vzdušný obývací pokoj s kuchyňským koutem o rozloze 26,4 m², který je díky orientaci na dvě světové strany krásně prosvětlený. Z obývacího pokoje je vstup na lodžii orientovanou na jihovýchod a zároveň francouzským oknem na jihozápad, přičemž oba výstupy vedou na prostornou předzahrádku o velikosti 70,9 m², ideální pro relax i venkovní posezení.

Ing. Jan Valeš
jednatel
Rokytnice Development s.r.o.




