VOLNÝ
Apartmán R.102
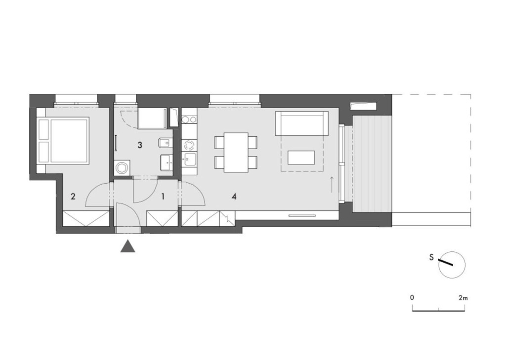
- 1 – CHODBA 4,4 m²
- 2 – POKOJ10,4 m²
- 3 – KOUPELNA 5,6 m²
- 4 – OBÝVACÍ POKOJ + KK25,8 m²
- PODLAHOVÁ PLOCHA MÍSTNOSTÍ 46,2 m²
- PODLAHOVÁ PLOCHA DLE NOZ 48,1 m²
- LODŽIE 5,6 m²
- PŘEDZAHRÁDKA 13,3 m²
Apartmán o dispozici 2+kk s podlahovou plochou 46,2 m² je vhodný pro 2 až 4 osoby. Srdcem bytu je světlý obývací pokoj s kuchyňským koutem o velikosti 25,8 m², který plynule navazuje na jihovýchodně orientovanou lodžii. Přes lodžii je zajištěn vstup na předzahrádku o rozloze 13,3 m², jež nabízí příjemný prostor pro posezení, relaxaci i dětské hry a zároveň rozšiřuje obytnou část bytu.

Ing. Jan Valeš
jednatel
Rokytnice Development s.r.o.




